ー コンテンツ ー
あなたの物件条件を入力すると売買、賃貸価格相場が変わります!
推定売買価格相場
5,340万円〜5,740万円
(82.20万円/㎡〜88.30万円/㎡)
※3年前の売買価格相場 平均5,540万円
推定賃料価格相場
20.9万円〜 24.9万円
(3,200円/㎡〜3,800円/㎡)
表面利回り
4.96%
※3年前の賃料価格相場 平均22.9万円
| 項目 | 単価 (2025年11月事例参照) |
備考 |
|---|---|---|
| 修繕積立金 |
約462円/㎡ |
修繕積立金の 推移グラフを見る |
| 管理費 |
約154円/㎡ |
管理費の 推移グラフを見る |
\あなたのお部屋番号を入れてかんたん無料査定![]()
\部屋番号を入れてかんたん無料査定/
号室/
![]()
賃貸経営をお考えの方! 賃料査定にも対応
今なら!マンション売却ノウハウ集プレゼント!
まずはお部屋番号を入力してください
売却をご検討中の方
マンションの売却を考えた際に、まずは価格相場を知ることから始めましょう。相場を知ることで価格設定の適正を理解しマーケットから乖離のない売出価格の設定が可能になります。
コンテンツ(目次)
マンションナビ一括査定とは?
全国2,500店舗の提携会社から、
あなたのマンション売却を得意とする会社をご提案!
査定額を比較し、納得のいく売却を目指そう!

マンション売却シミュレーター
マンション売却シミュレーターでは、売却価格と残債額から
売却にかかる諸経費が自動で算出され、手元に残る金額がわかります。
売却価格 参考値
駒場館
試算条件 65㎡・2階
推定売却価格:5,265万円
※各種手数料として価格の5%を控除
資金計画のために査定額や希望売却価格を入力して活用するのもおすすめ◎
売却価格
万円
残債
万円
売却にかかる費用
00万円
- ■仲介手数料/00万円
- ■売買契約書印紙/0万円
- ■抵当権抹消費用/0万円
手元に残るお金は
000万円
- ※購入価格よりも売却価格が高い場合、譲渡所得税が発生する場合がございます。詳しくは最寄りの税務署などにご確認ください。
- ※シミュレーター結果はあくまでも概算であり、手残り金額を保証するものではございません。
- ※上記売却費用には、住所変更登記の費用、引っ越し費用、住宅ローンの一括繰上返済の手数料等は含まれておりませんので予めご了承ください。
- ※仲介手数料は宅地建物取引業法で定められた上限で計算しております。(物件価格×3%+6万円+消費税)
お得に購入したい
この物件が販売されたら
メールでお知らせします!
新着物件や価格改定(値下げ)があった際に
メールでお知らせします
販売通知メール登録者数 0人
購入をご検討中の方
販売価格は成約価格とは限りません。物件サイトに掲載されている価格が相場と乖離が無いか確認をしましょう。相場よりも高い安い理由を担当者に尋ねてみましょう。
閲覧中物件の競合マンション
コンテンツ(目次)
総支払額シミュレーション
住宅ローンの月々、年間、生涯の支払額が
計算できます。
-
購入希望
物件価格万円
-
ご希望の
返済期間年
-
住宅ローン
金利%
-
ボーナス
返済金額万円
-
頭金
万円
返済シミュレーション計算結果
-
毎月の支払額
-円
-
年間の支払額
-円
-
総支払額
-円
PR近隣マンションの売出し物件
\会員登録で希望エリアの販売中物件を検索する/
マンションナビで表示される価格相場は過去10年に渡り独自に収集している2億件超の売買・賃貸事例データ(2025/12現在)に基づき算出しております。
OUTLINE
駒場館
物件概要
| マンション名 | 駒場館 (駒場館) |
| 住所 |
東京都目黒区駒場1丁目25-7 ストリートビューで見る |
| 最寄り駅 |
京王電鉄井の頭線「駒場東大前駅」徒歩5分 |
| 管理会社 | ライフポート西洋 |
| 土地権利 | 所有権 |
| 用途地域 | 第一種中高層住居専用地域 |
| 建物構造 | RC(鉄筋コンクリート) |
| 修繕積立金 ※最新売出事例より算出 |
約462円/㎡ (2025年11月事例参照) 修繕積立金の推移グラフを見る |
| 管理費 ※最新売出事例より算出 |
約154円/㎡ (2025年11月事例参照) 管理費の推移グラフを見る |
| 築年数 | 2005年1月(築20年) |
| 階数 | 4階 (地下1階) |
| 総戸数(棟総戸数) | 13戸 |
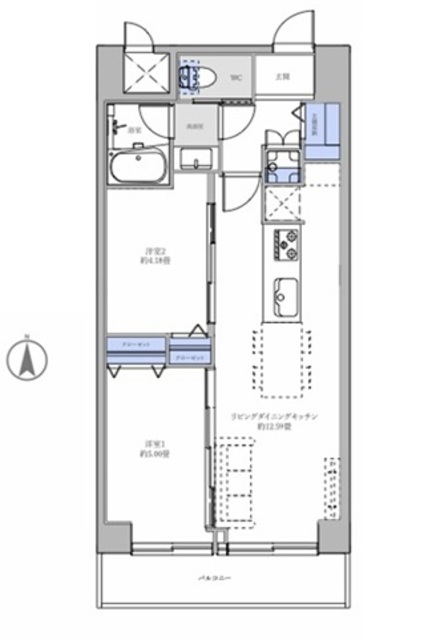
| 間取り | 1LDK |
| 専有面積 | 59.32㎡ 〜 59.32㎡ |
| バルコニー面積 | データ未取得 |
駒場館の
売買価格推移
過去と比べると?
駒場館の平均売買㎡価格を最大3年前と比較したデータです。所在エリアの平均売買㎡価格との比較もできます。
会員登録をすることで最大9年前から比較することができます
- 駒場館
- ー
- 6年前と比較して-585万円(-9.6%)
- ー
- ー
- 目黒区平均
- ー
- 6年前と比較して+3,250万円(54.5%)
- 3年前と比較して+1,820万円(24.6%)
- 1年前と比較して+1,157万円(14.3%)
- 競合物件※65㎡で算出
- 3年前と比較して
- 1年前と比較して
資産評価
いつ買う? いつ売る?
駒場館の価格推移は大きな変動がみられないことから、価格が安定しているといえます。
市場状況を見極めた行動が重要ではありますが、最適なタイミングはライフスタイルや経済状況によって異なるため、ご自身の状況と住み替えやその後の経済的影響を考慮した上で判断することが重要です。
\マンション価格上昇中!/
\少しでも高く売却するには?/


- 簡単45秒無料査定
- 最大9社比較・検討!
- 多くのユーザーが通常よりも
高い金額で売却! - 不動産(マンション)売却
一括査定サイトで4冠達成!
駒場館の
管理費・修繕積立金 価格推移
過去と比べると?
駒場館の管理費・修繕積立金の価格推移を最大3年前からみることができます。
| 駒場館 | 競合物件 | |||
| 比較 時期 |
3年前比 | 1年前比 | 3年前比 | 1年前比 |
| 管理費 | ±0円(±0%) | ±0円(±0%) | +36円(+13%) | +10円(+3%) |
| 修繕 積立金 |
±0円(±0%) | ±0円(±0%) | +114円(+64%) | +35円(+14%) |
管理費や修繕積立金は、購入時の設定金額から値上がりすることが一般的といわれています。
また、大幅に管理や修繕積立金が変動している場合は、管理会社が変わった可能性があります。
※管理費・修繕積立金については表示年月含む3か月間の売出事例を元に平均値を算出し表示しております。
購入をご検討されている方
住宅ローンを組まれる際には、管理費・修繕積立金を加味した年収比率で住宅ローンのお借り入れをしましょう。
マンションナビのマイページでは、年間返済額と年収比率まで計算できるシミュレーションをご用意しています。
ー コンテンツ ー
東京都目黒区の不動産お悩み相談室
不動産に関するお悩みを
無料・匿名で相談できる掲示板
相談内容に関して、専門性の高い不動産会社・ファイナンシャルプランナー・税理士・司法書士などからアドバイスが届きます。
マンション売却活動の口コミ
@近隣マンション
-
【投稿日:2024年01月31日】
今から売却を考えている人に伝えたいこと
価格改定などもなく、1か月ほどですぐに決まったため大変な点はなかった。何社か並行して売却活動を行った事が良かったのではないかと考えている。
■売却依頼会社/非公開
■売却理由/資産整理
■今後の住まい/投資用マンションのため売却後の住まいの変更は無い購入価格 売出価格 成約価格 2,900万円 3,500万円 3,500万円 価格改定0回

売却開始時期/
2022年3月
2ヶ月

成約時期/
2022年4月 -
【投稿日:2022年07月14日】
今から売却を考えている人に伝えたいこと
特になし
■売却依頼会社/未定
■売却理由/買い替え
■今後の住まい/戸建の賃貸購入価格 売出価格 価格改定回数 4,720万円 7,280万円 0回 売却開始時期/
2022年6月
売却活動

ー 未成約 ー
-
【投稿日:2023年04月03日】
今から売却を考えている人に伝えたいこと
マンションが売れない理由が必ずしも価格にあるわけではないが、1ヶ月、2ヶ月と経過してもなかなか反響がないという状況で、相場を理解せずに値下げをしてしまった。 改めて考えると、値下げの決断の前に相場や競合物件の価格を確認すればよかった。
■売却依頼会社/オークラヤ住宅
■売却理由/買い替え
■今後の住まい/戸建へ買い替え購入価格 売出価格 成約価格 4,700万円 2,800万円 2,800万円 価格改定0回

売却開始時期/
2022年1月
3ヶ月

成約時期/
2022年3月
一部会員限定サービス
駒場館の販売・賃貸価格履歴
いくらで売りに出された?
最新50件の駒場館の販売・賃貸価格履歴のデータです。「販売・賃貸価格履歴」とは、マンションの販売活動が開始された時点の価格の履歴となります。
駒場館販売価格履歴
-
2017年1~3月
販売価格:5,780万円(㎡単価97万円)
上層階 /南向き /1LDK /60㎡
競合マンション販売価格履歴
-
2025年10~12月
販売価格:1億4,980万円(㎡単価230万円)
上層階 /南向き /2LDK /65㎡
-
2025年10~12月
販売価格:1億5,800万円(㎡単価215万円)
下層階 /南向き /3LDK /75㎡
-
2025年10~12月
販売価格:1億5,990万円(㎡単価224万円)
中層階 /南西向き /3LDK /70㎡
-
2025年10~12月
販売価格: 万円(㎡単価 万円)
階 /- /1LDK /65㎡
-
2025年10~12月
販売価格: 万円(㎡単価 万円)
中層階 /南向き /2LDK /70㎡
-
2025年10~12月
販売価格: 万円(㎡単価 万円)
下層階 /南向き /1LDK /55㎡
-
2025年10~12月
販売価格: 万円(㎡単価 万円)
上層階 /南西向き /1LDK /55㎡
-
2025年10~12月
販売価格: 万円(㎡単価 万円)
下層階 /南東向き /2LDK /60㎡
-
2025年10~12月
販売価格: 万円(㎡単価 万円)
上層階 /東向き /2LDK /60㎡
-
2025年10~12月
販売価格: 万円(㎡単価 万円)
中層階 /南向き /1LDK /50㎡
-
2025年10~12月
販売価格: 万円(㎡単価 万円)
下層階 /北東向き /2LDK /55㎡
-
2025年10~12月
販売価格: 万円(㎡単価 万円)
中層階 /南東向き /2LDK /60㎡
-
2025年10~12月
販売価格: 万円(㎡単価 万円)
下層階 /南向き /2LDK /60㎡
-
2025年10~12月
販売価格: 万円(㎡単価 万円)
下層階 /南西向き /1LDK /45㎡
-
2025年10~12月
販売価格: 万円(㎡単価 万円)
上層階 /南西向き /2LDK /70㎡
-
2025年7~9月
販売価格: 万円(㎡単価 万円)
上層階 /南西向き /2LDK /70㎡
-
2025年7~9月
販売価格: 万円(㎡単価 万円)
下層階 /南東向き /2LDK /70㎡
-
2025年7~9月
販売価格: 万円(㎡単価 万円)
階 /- /2LDK /60㎡
-
2025年7~9月
販売価格: 万円(㎡単価 万円)
下層階 /南西向き /1LDK /65㎡
-
2025年4~6月
販売価格: 万円(㎡単価 万円)
中層階 /北東向き /1LDK /55㎡
-
2025年4~6月
販売価格: 万円(㎡単価 万円)
中層階 /西向き /1LDK /45㎡
-
2025年1~3月
販売価格: 万円(㎡単価 万円)
上層階 /東向き /2LDK /55㎡
-
2025年1~3月
販売価格: 万円(㎡単価 万円)
上層階 /東向き /1SLDK /55㎡
-
2024年10~12月
販売価格: 万円(㎡単価 万円)
中層階 /東向き /1LDK /65㎡
-
2024年10~12月
販売価格: 万円(㎡単価 万円)
中層階 /北西向き /1LDK /65㎡
-
2024年10~12月
販売価格: 万円(㎡単価 万円)
中層階 /東向き /1LDK /60㎡
-
2024年7~9月
販売価格: 万円(㎡単価 万円)
階 /- /1LDK /65㎡
-
2024年4~6月
販売価格: 万円(㎡単価 万円)
上層階 /東向き /2LDK /60㎡
-
2024年4~6月
販売価格: 万円(㎡単価 万円)
中層階 /南向き /1LDK /45㎡
-
2024年4~6月
販売価格: 万円(㎡単価 万円)
中層階 /南西向き /3LDK /70㎡
-
2024年1~3月
販売価格: 万円(㎡単価 万円)
下層階 /南東向き /1LDK /55㎡
-
2023年10~12月
販売価格: 万円(㎡単価 万円)
中層階 /南西向き /1LDK /45㎡
-
2023年10~12月
販売価格: 万円(㎡単価 万円)
中層階 /南西向き /1R /45㎡
-
2023年10~12月
販売価格: 万円(㎡単価 万円)
中層階 /西向き /3LDK /60㎡
-
2023年10~12月
販売価格: 万円(㎡単価 万円)
中層階 /東向き /2LDK /60㎡
-
2023年10~12月
販売価格: 万円(㎡単価 万円)
中層階 /南西向き /2LDK /70㎡
-
2023年7~9月
販売価格: 万円(㎡単価 万円)
中層階 /南東向き /1LDK /60㎡
-
2023年7~9月
販売価格: 万円(㎡単価 万円)
上層階 /東向き /1LDK /60㎡
-
2023年7~9月
販売価格: 万円(㎡単価 万円)
上層階 /東向き /1LDK /45㎡
-
2023年4~6月
販売価格: 万円(㎡単価 万円)
中層階 /南東向き /2LDK /60㎡
-
2023年4~6月
販売価格: 万円(㎡単価 万円)
下層階 /南東向き /2LDK /60㎡
-
2023年4~6月
販売価格: 万円(㎡単価 万円)
上層階 /南東向き /1LDK /55㎡
-
2023年4~6月
販売価格: 万円(㎡単価 万円)
下層階 /南東向き /2LDK /60㎡
-
2023年4~6月
販売価格: 万円(㎡単価 万円)
中層階 /東向き /2LDK /55㎡
-
2023年1~3月
販売価格: 万円(㎡単価 万円)
上層階 /東向き /2LDK /70㎡
-
2023年1~3月
販売価格: 万円(㎡単価 万円)
下層階 /南西向き /1LDK /45㎡
-
2023年1~3月
販売価格: 万円(㎡単価 万円)
中層階 /南西向き /1LDK /55㎡
-
2022年7~9月
販売価格: 万円(㎡単価 万円)
中層階 /南西向き /2LDK /60㎡
-
2022年7~9月
販売価格: 万円(㎡単価 万円)
中層階 /- /2LDK /60㎡
-
2022年7~9月
販売価格: 万円(㎡単価 万円)
下層階 /- /1LDK /55㎡
駒場館賃貸価格履歴
-
2022年10~12月
販売価格:22.0万円(㎡単価3,385円)
上層階 /- /1LDK /65㎡
競合マンション賃貸価格履歴
-
2025年10~12月
販売価格:44.0万円(㎡単価7,063円)
中層階 /- /1LDK /65㎡
-
2025年10~12月
販売価格:44.0万円(㎡単価7,063円)
- /- /1LDK /65㎡
-
2025年10~12月
販売価格:44.0万円(㎡単価7,063円)
- /- /1LDK /65㎡
\売るか貸すか迷っているあなたも/

- 事例を元に価格を設定しよう
- 『今ならもっと高く売れる?』『賃貸に出すのはあり?』
- 価格の根拠をしっかりと
不動産会社に聞くことが大切!
販売期間
何日間で取引された?
駒場館と競合マンションの販売期間データです。過去5年間に独自で収集したデータを数値化しています。
駒場館
VS 競合物件の販売期間
■競合する物件の条件
(該当する物件数/109件)
「駒場館」から徒歩15分以内、建築年が2000年〜2010年の間で過去5年以内に販売された物件
「駒場館」の
最多販売期間は
~
90日
(40%)
競合物件の
最多販売期間は
~
30日
(26%)
競合物件と比較すると
長期の売買活動になる可能性が高い
\当マンションの売却が得意な会社を選定/

- 売却事例を提示してもらおう!
- 売却の戦略は担当者と一緒にたてるのが大切。
- 『春までに売却したい』『急な転勤になった』
- まずは状況を不動産会社に相談!
販売時期
いつ売り出された?
競合マンションの販売時期を知ることで、売り出すタイミングの判断ができます。
一番多かったのは4月で110件(10.8%)、
二番目に多かったのは1月で109件(10.8%)でした。
【売却目線】
同時に販売されている類似マンション数が多ければ、どうしても値下げ競争になってしまうことから、販売マンション数が多い場合には閑散期を狙うのもおすすめです。
【購入目線】
購入時期を目安に狙い目シーズンを見極めましょう。流通の多いタイミングでは売出し状況を見て価格交渉のチャンスがあるかも。その際には価格相場を参考にしましょう。
マーケット情報
どんな市場なの?
目黒区のマンションマーケット
(売買)データ
| 2025/10 | 2025/09 | 2024/11 | |
|---|---|---|---|
|
平均 価格 |
9,689万円 |
9,165万円 524万円⬆ |
8,062万円
1627万円⬆
|
| 平均 ㎡単価 |
160万円/㎡ |
154万円
6万円/㎡⬆
|
135万円
25万円/㎡⬆
|
| 新規 登録数 |
150件 |
155件
-5件⬇
|
158件
-8件⬇
|
|
平均 築年数 |
34年 |
34年
-年-
|
35年
-1年⬇
|
2025/10には、平均売買価格が9,689万円(160万円/㎡)で
『新規登録件数』は150件、『平均建築年』は築34年です。
2025/09と比較して『平均価格』は524万円上昇。
『平均㎡単価』は6万円上昇しました。
目黒区と駒場のマンション流通量
-
目黒区では
30戸以下の
小規模マンションが多い -
駒場では
30戸以下の
小規模マンションが多い
過去3年間に売り出された当該物件の数:0件
概ね月に0件の
新規売出しがあります。
目黒区と駒場の部屋条件別 価格変動
▼間取別の販売価格(過去5年間)
| 間取 | 販売価格(中央値) | (該当物件数/割合) |
|---|---|---|
| 1R・1K | 2,480万円 | 3,875物件/30% |
| 1LDK | 5,680万円 | 3,491物件/27.1% |
| 2LDK | 9,280万円 | 3,768物件/29.2% |
| 3LDK | 12,980万円 | 1,667物件/12.9% |
| 4LDK | 15,000万円 | 95物件/0.7% |
『駒場館』 近辺のエリアでは、「1R・1K」タイプの過去販売物件数が一番多く、 販売価格の中央値は、2,480万円となっています。 また過去5年間の「1R・1K」タイプの売出しは3,875物件で、 供給数(売出物件数)の30%を占めています。
▼建築年別の㎡単価
| 建築年 | 平均㎡単価(坪単価) | (物件数/割合) |
|---|---|---|
| 1〜5年 | 311万円/㎡ (1,028万円/坪) |
892物件/6% |
| 6〜10年 | 207万円/㎡ (684万円/坪) |
997物件/6.7% |
| 11〜15年 | 184万円/㎡ (607万円/坪) |
1,246物件/8.3% |
| 16〜20年 | 167万円/㎡ (553万円/坪) |
1,336物件/8.9% |
| 21〜25年 | 162万円/㎡ (535万円/坪) |
1,843物件/12.3% |
| 26〜30年 | 134万円/㎡ (443万円/坪) |
1,525物件/10.2% |
| 31〜35年 | 112万円/㎡ (369万円/坪) |
404物件/2.7% |
| 36〜40年 | 105万円/㎡ (346万円/坪) |
651物件/4.3% |
| 41〜45年 | 102万円/㎡ (338万円/坪) |
1,897物件/12.7% |
| 46〜50年 | 101万円/㎡ (335万円/坪) |
1,382物件/9.2% |
| 51年〜 | 95万円/㎡ (314万円/坪) |
2,814物件/18.8% |
『駒場館』 近辺のエリアでは、建築年が51年〜のマンションが一番売り出されています。該当の売出し物件数は2,814物件で、供給数(売出し物件数)の18.8%を占めています。
FLOW
査定依頼から売出しまでの流れ
-
STEP-1 無料査定依頼
査定したい不動産情報と連絡先を入力。正確な査定価格を算出するために各不動産会社からお電話、メールでご連絡があります。
※この時に希望条件などをしっかりと伝えることが売却を成功に導きます。 -
STEP-2 机上査定結果が届く
査定を依頼した不動産会社から査定結果が届きます。
-
STEP-3 訪問査定
データだけではわからない物件の魅力を伝えるために不動産会社に訪問査定を依頼。
※ベランダからの眺望やお部屋を大切に使われている等での査定額アップもあります。 -
STEP-4 比較・検討・契約
査定額や対応を比較し、依頼先を検討・媒介契約を締結。不動産会社が本格的に動き、買主を探します。
高く売却できる3つの理由
不動産(マンション)売却
一括査定サイトで4冠達成!

- ★初めての方におすすめできる※1
- ★売却価格満足度の高い※2
- ★不動産売却経験者がおすすめする※3
- ★知人に紹介したい※4
4つの項目で1位を獲得しているからこそ、
安心してご利用いただけます。
安心の実績! 毎月約1,000人超え
の利用者数!

不動産会社最大9社を無料でご紹介します。
年間約2万人から「プロによる査定」を
ご利用いただいております。
マンション専門の
一括査定だから叶うマッチング!
全国2,500店舗の不動産会社から、
あなたのマンション売却を
得意とする会社をご提案!
売却したい物件の特徴にあった
不動産会社を選択することが重要です!

\査定価格を比較検討して高く売却/
マンションナビ一括査定をご利用された方の
査定の理由&希望売却時期
※マンションナビ調べ(計測期間:2023年12月〜2024年2月)
駒場館
よくある質問
売買価格相場5,340万円〜5,740万円、 賃貸賃料相場20.9万円〜24.9万円 です。物件の条件を設定することで、より正確な相場をご確認いただけます。
最新売出事例より算出した管理費は約154円/㎡です(2025年11月事例参照)
管理費の推移グラフを見る
最新売出事例より算出した修繕積立金は約462円/㎡です(2025年11月事例参照)
修繕積立金の推移グラフを見る
駒場館(65㎡・2階)の売却をした場合は5,265万円です。※各種手数料として価格の5%を控除。ローン残債を入力すれば、手元に残る金額を計算できます。シミュレーターはこちらから。
駒場館の売却を得意とする不動産会社をマンションナビが選定いたします。一括査定のご利用は無料となりますので こちらよりお気軽にお申込みください。
この物件が販売されたら
メールでお知らせします!
新着販売や価格改定(値下げ)があった際にメールでお知らせします。
※注1.マンションナビで表示される、過去事例データ、マーケットデータは過去10年に渡り独自に収集している2億件超の売買・賃貸事例データ(2025/12現在)に基づき算出しております。
※注2.この販売価格履歴は当社開発ソフトウエアのクロール情報に基づく参考情報です。販売価格履歴は成約事例ではありません。そのため、販売途中で販売中止になった事例なども含まれることがあります。販売価格・専有面積については個人情報保護のため、一部数値を加工して特定できないようにしております。あらかじめご了承ください。
※注3.お部屋の平米数や間取りによってここに掲載されていない不動産会社様をご紹介する場合もございます。あらかじめご了承ください。


































【注意事項】